TANATORIO DEL CONCEJÓN DE IBIO
Se trata de un edificio de reducidas dimensiones situado de forma anexa al cementerio, en el exterior del núcleo urbano de Herrera de Ibio. El tanatorio se presenta como la mínima expresión para albergar el paquete programático originario de este proyecto. Éste plantea una gran cubierta a dos aguas de teja roja muy común en la zona, sustentada por una estructura de cerchas de madera. El edificio queda resuelto con el material perteneciente al muro de cerramiento del cementerio, el blanco de algunos paramentos y un tono gris oscuro para algunas carpinterías y vigas metálicas que forman parte del sistema estructural de la cubierta.
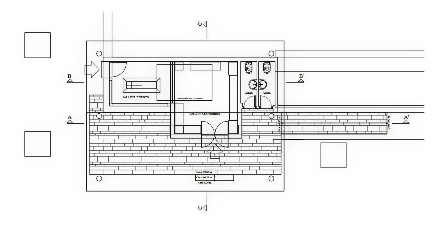
Satisfaciendo las necesidades del programa planteado por la junta vecinal de Ibio, se plantea una intervención con una importante componente paisajística. El edificio en todo momento queda integrado en el entorno en que se inserta y responde de forma muy elegante al uso para el que se destina. La totalidad del edificio queda desarrollado en una planta con tres espacios diferentes, la sala de velatorio, la sala para el difunto y los aseos.
DATOS
CLIENTE

Junta vecinal de Ibio
LOCALIZACIÓN

PB Herrera s/n
Ibio
(Cantabria)
SUPERFICIE

40 m2
VIVIENDA

—
FECHA

2006
ESTADO

Construido
PLANO








