REHABILITACIÓN CENTRO SOCIAL EN CARABANCHEL
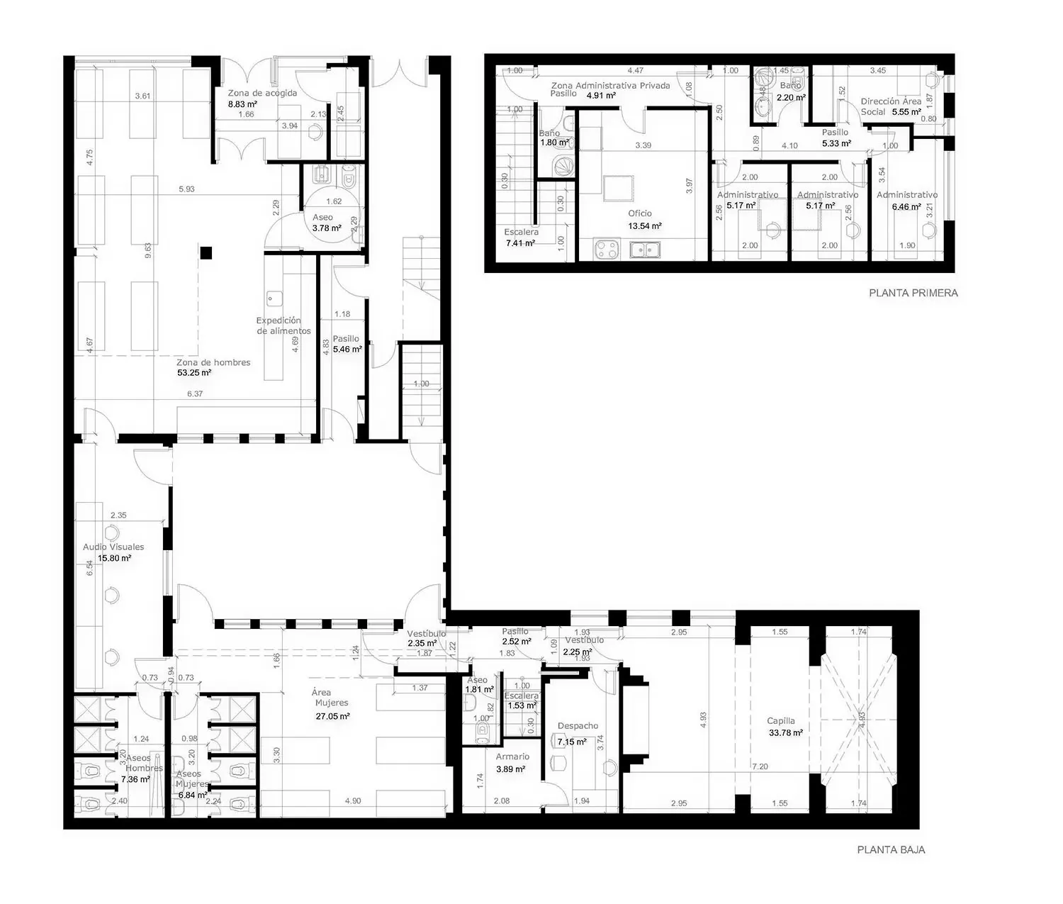
Se trata de un proyecto que plantea la renovación y reestructuración parcial de un inmueble caracterizado por una seria falta de mantenimiento. Esta intervención engloba una reparación de la cubierta del edificio, paramentos, así como la mejora del interior del proyecto: el patio que organiza los espacios y a la vez introduce la iluminación en gran parte de las estancias.
Satisfaciendo las necesidades planteadas por el promotor, se plantea el acondicionamiento de un inmueble como centro de servicios sociales, para lo cual se modifica puntualmente la distribución existente. Como parte de la reestructuración funcional, se suprime la comunicación entre planta baja y sótano desde la calle y se propone la renovación de las instalaciones en las zonas donde están más afectadas.
Para la correcta iluminación y ventilación de las salas interiores se provee de iluminación artificial y ventilación forzada. En el caso de las salas interiores que quedan bajo cubierta se colocan ventanas tipo velux para la correcta ventilación e iluminación.
El presente proyecto se consolida como uno de los trabajos con mayor complejidad técnica, porque al margen de todas las decisiones relativas a instalaciones y cerramientos que se tomaron, se decidieron suplementar una serie de elementos de arquerías y bóvedas en un espacio destinado a capilla. Para el desarrollo y ejecución de estos trabajos fue totalmente necesario el conocimiento de técnicas constructivas no utilizadas habitualmente.
DATOS
CLIENTE

Una casita para los pobres
LOCALIZACIÓN

Cl. Fernando Díaz de Mendoza 6
(Madrid)
SUPERFICIE

400 m2
VIVIENDA

—
FECHA

2011
ESTADO

Construido
PLANO









