EDIFICIO COMERCIAL EN POZUELO DE ALARCÓN
Se trata de un edificio de uso terciario que alberga 3 usos diferentes y aparcamientos ubicados en las plantas sótano. El edificio plantea una relación con su entorno urbano mediante la distinción de la pieza urbana que conforma.
Satisfaciendo las necesidades del programa planteado por RISE&SHINE, se presenta una propuesta que sustituye el edificio existente por otro capaz de desarrollar una nueva actividad económica en el entorno. Éste proyecto se ve reforzado por las recientes actuaciones urbanísticas llevadas a cabo por el ayuntamiento de Pozuelo, con la intención de trasladar el tejido industrial al exterior de la ciudad y expandir el tejido residencial. Toda esta ambiciosa intervención surge en colaboración con empresas tales como HAMBURGUESA NOSTRA, DIA o SUPERSOL.
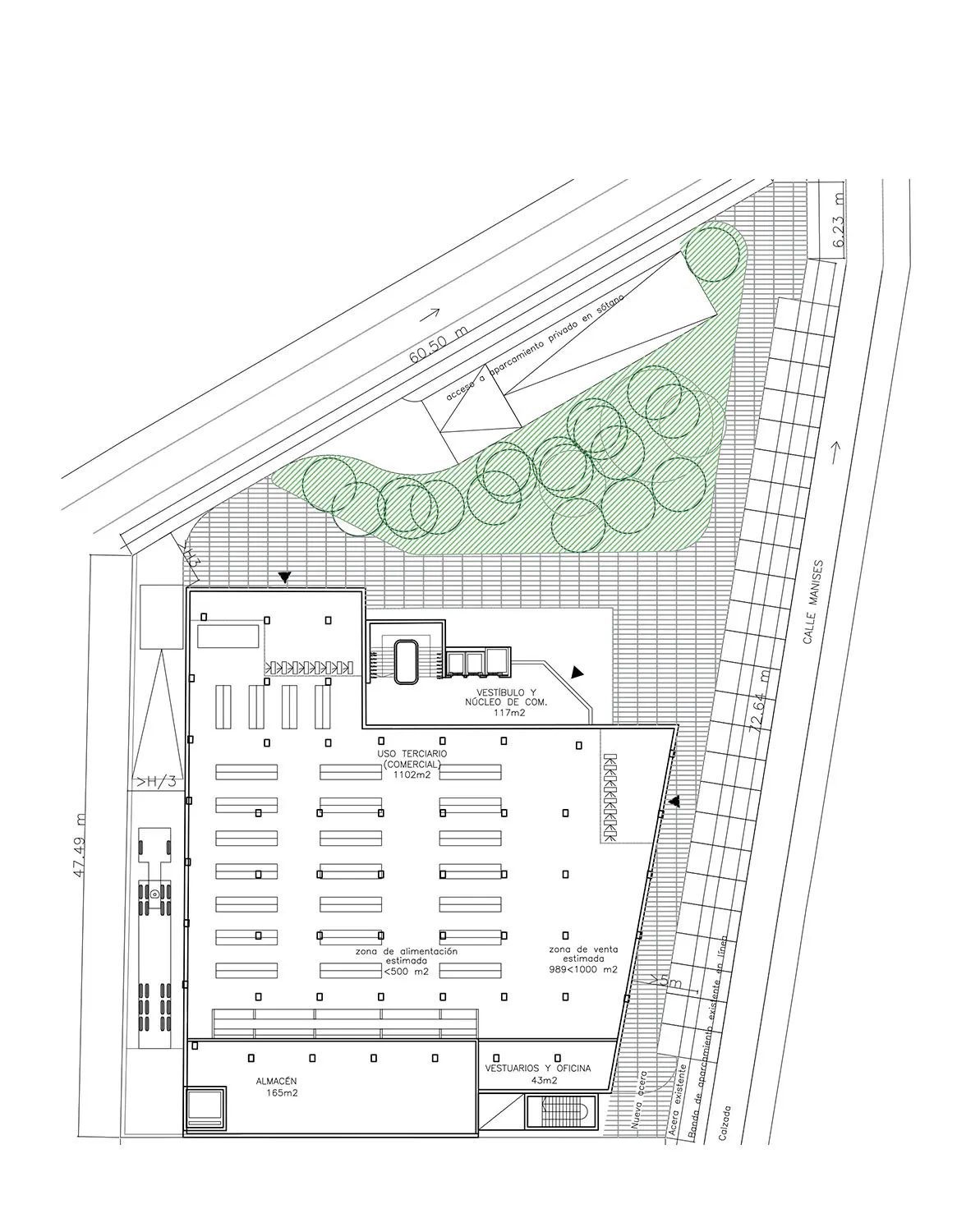
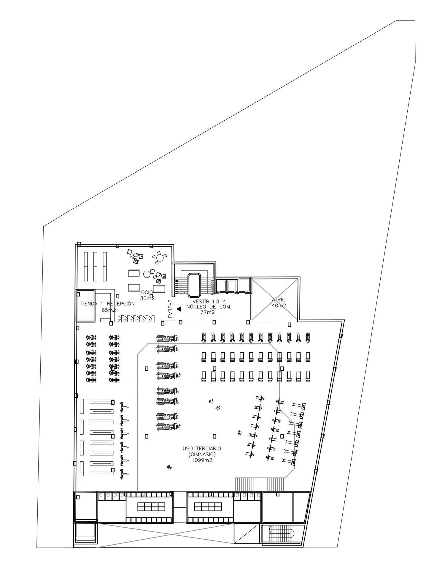
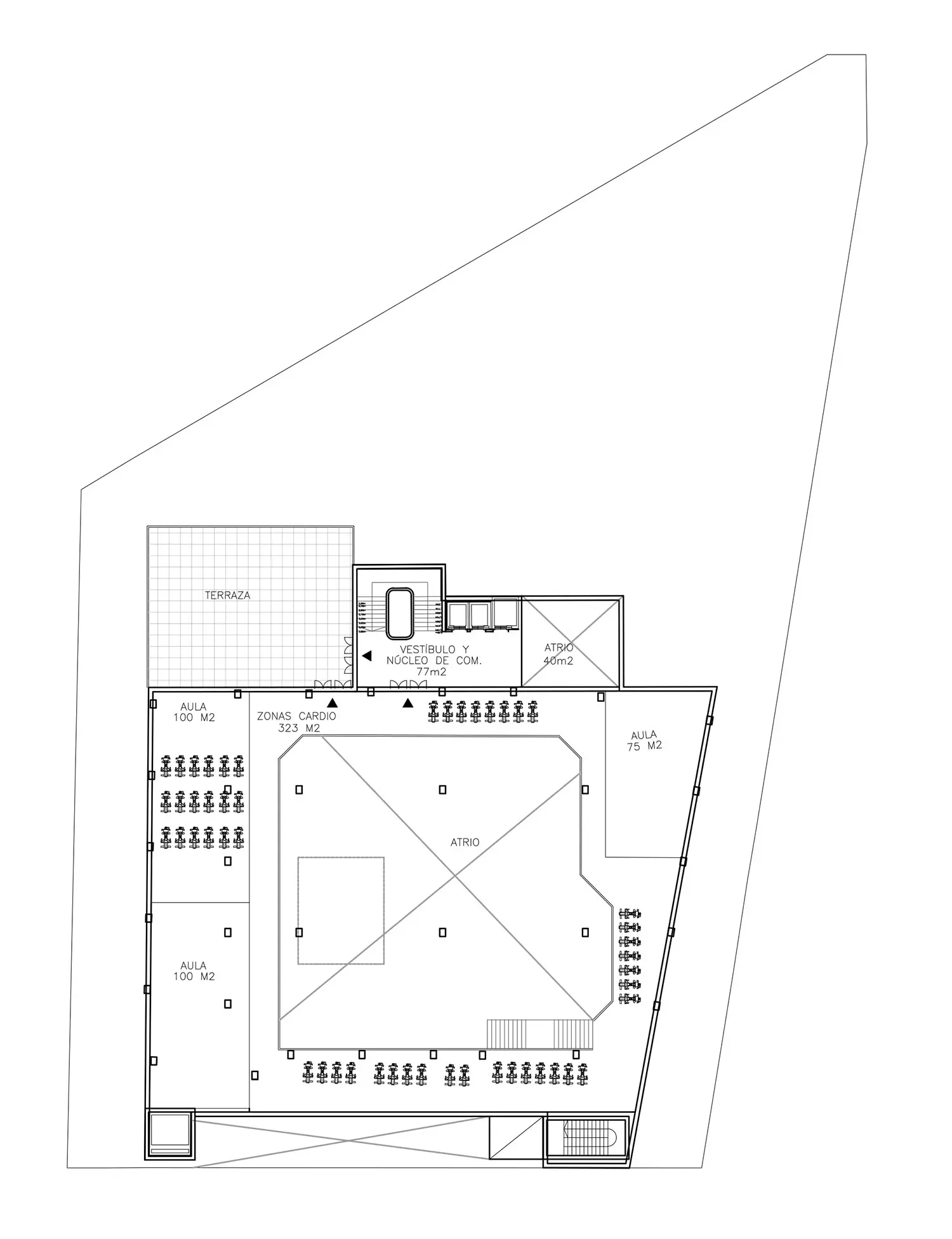
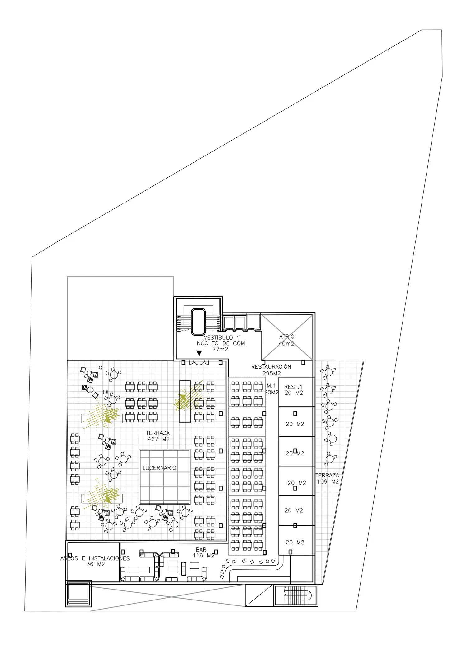
De esta forma se estructura el edificio por plantas que albergan los diferentes usos. En la planta baja se establece el uso terciario-comercial, con instalación de comercio minorista menor de 1.000 m2 de superficie de ventas, de los cuales la alimentación será en todo caso, inferior a 500 m2. En plantas primera y segunda se establece el uso terciario-servicios mediante un gimnasio urbano gestionado por personal especializado que da servicio a la población residente y a los trabajadores del sector industrial próximo. En la tercera planta se propone el uso terciario-restauración, mediante la implantación de uno o varios operadores comerciales en locales de pequeñas dimensiones, a modo de agrupación comercial en una sola planta, compartiendo zonas estanciales y que puede contribuir a dinamizar el entorno.
DATOS
CLIENTE

RISE&SHINE
LOCALIZACIÓN

Cl. Manises, 5
Pozuelo de Alarcón
(Madrid)
SUPERFICIE

10.400 m2
VIVIENDA

—
FECHA

2017
ESTADO

Proyecto
PLANO







