CENTRO DE SALUD EN CABEZÓN DE LA SAL
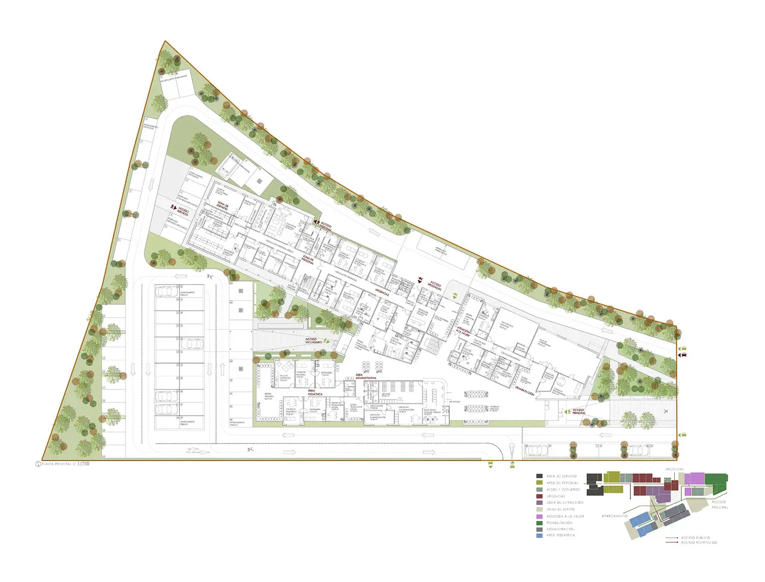
El solar objeto del presente proyecto, se sitúa en el Término Municipal de Cabezón de la Sal, en el Barrio de La Pesa, en la zona de ensanche del municipio. La situación de la edificación, así como su forma y posición sobre la parcela, responde entre otros condicionantes a la normativa vigente para este sector. El entorno circundante en el que se proyecta, responde mayoritariamente a la tipología de vivienda colectiva con 3 plantas con cubierta de teja, desarrollada en bloque abierto. En la proximidad se levanta un centro deportivo municipal.
Satisfaciendo las necesidades del programa planteado por el GESVISCAN, se presenta una solución edificatoria que implemente los usos propuestos dentro de la menor superficie posible.
Se propone una disminución de zonas comunes con vistas a optimizar los espacios proyectados y cumplir rigurosamente las dimensiones mínimas previstas para cada estancia.
El centro se desarrolla principalmente en planta baja, pero no en toda su extensión ya que las plazas de aparcamiento ocupan parte de la zona de urbanización para ahorrar costes innecesarios. Como mejora del comportamiento energético del edificio, se decide de base prescindir de lucernarios y dobles alturas. El pabellón septentrional sirve de telón de fondo de todo el conjunto, como si la parcela fuera una grada que mira hacia este escenario, simulando un espejo que da una imagen luminosa a todo el conjunto.
DATOS
CLIENTE

GESVICAN
LOCALIZACIÓN

Cl. General Vigón, 2
Cabezón de la Sal
(Cantabria)
SUPERFICIE

2650 m2
VIVIENDA

—
FECHA

2013
ESTADO

Proyecto
PLANO





